Smart Life 93
Hausfakten:
- Schlüsselfertig je Haushälfte
- inklusive Fundamentplatte
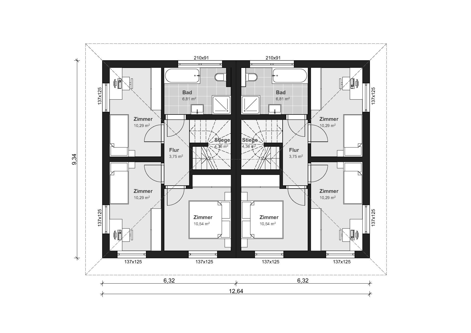
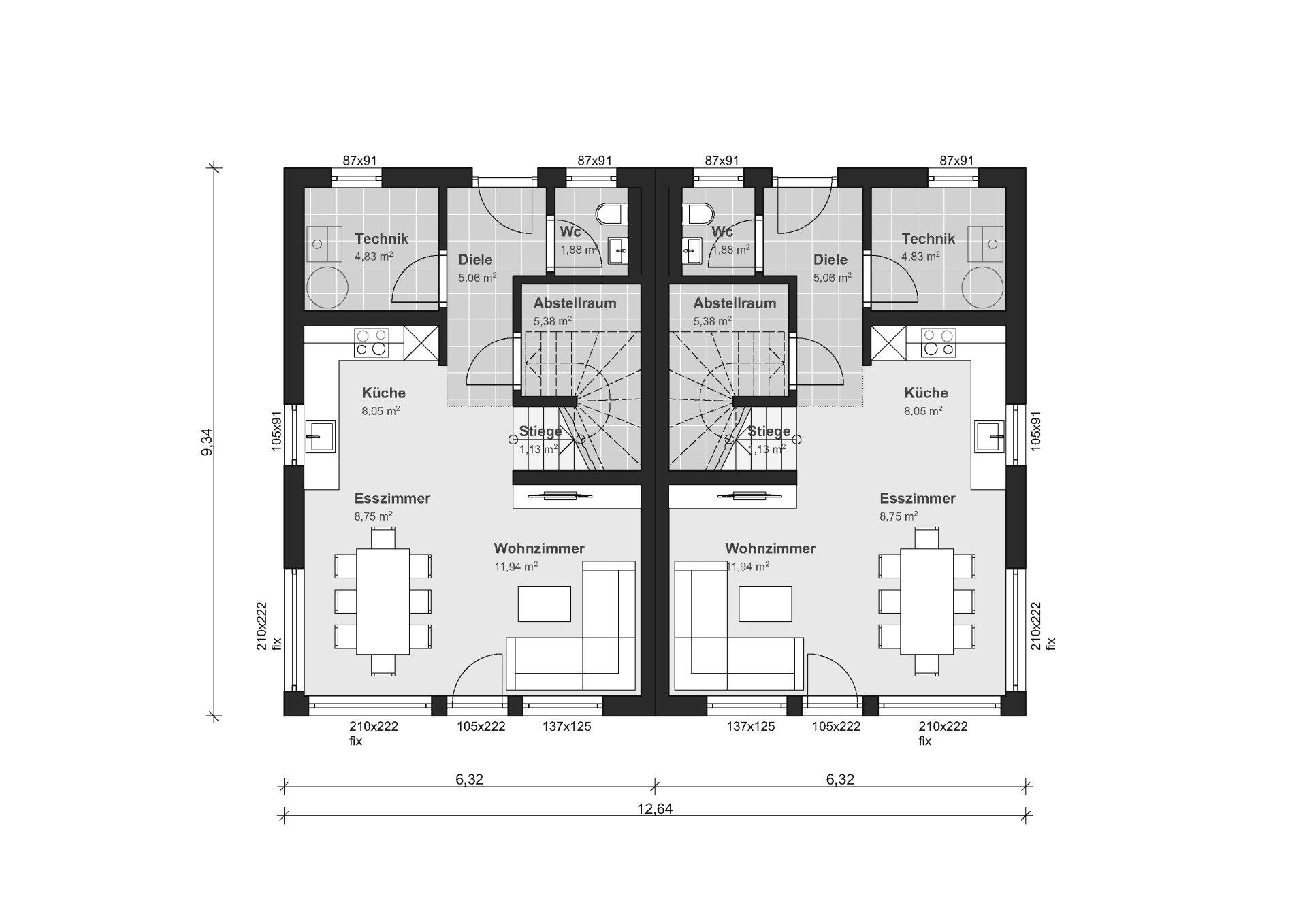
- Bebaute Fläche: 59,03 m²
- Nettogrundfläche: 93,06 m²
- Dachform: 25° Walmdach
€ 326.050,--
Kurzbeschreibung „Schlüsselfertig“
• Außen komplett fertig
• Außenwand Premium Thermo Vital Wand
• Dachkonstruktion mit Dämmung und Dacheindeckung
• Fugenloser Fassadenputz auf der Baustelle aufgebracht (Keine Fugen und keine Schienen)
• Dachentwässerung Alu-Zink beschichtet anthrazit
• Fußbodenheizung inkl. Einzelraumregelung
• Luft-Wasser-Wärmepumpe mit Außeneinheit
• Aufbau, Montage, Kran und Gerüstkosten
• Beplankung der Wände der revolutionären Fasergipsplatte
• Kunststoff-Alu Fenster, 3-fach-verglast
• Fensterbänke außen und innen
• Alu Rollläden inkl E-Antrieb mit Fernbedienung
• Hochwertige Hauseingangstüre mit Mehrfachverriegelung
• Betonestrich inklusive Wärme- und Trittschalldämmung
• Elektroinstallationen inklusive TV und Klingelanlage
• Sicherungskasten inklusive Fertigmeldung an EVU
Zusätzlich bei Schlüsselfertig enthalten:
• Verfliesung Bad + WC
• Sanitäreinrichtung laut Plan
• Dusche mit Echtglaskabine
• Spachtel- und Malerarbeiten
• Bodenbeläge Echtholzparkett in Eiche
• Treppe aus Massivholz in Eiche
• Innentüren laut Plan
Terrassenüberdachung - laut Symbolbild inkl. Stichwand, als Walmdach mit Ziegeleindeckung ausgeführt - je Haushälfte
Auf Anfrage!




