Smart Life 102
Hausfakten:
- Schlüsselfertig inklusive Fundamentplatte
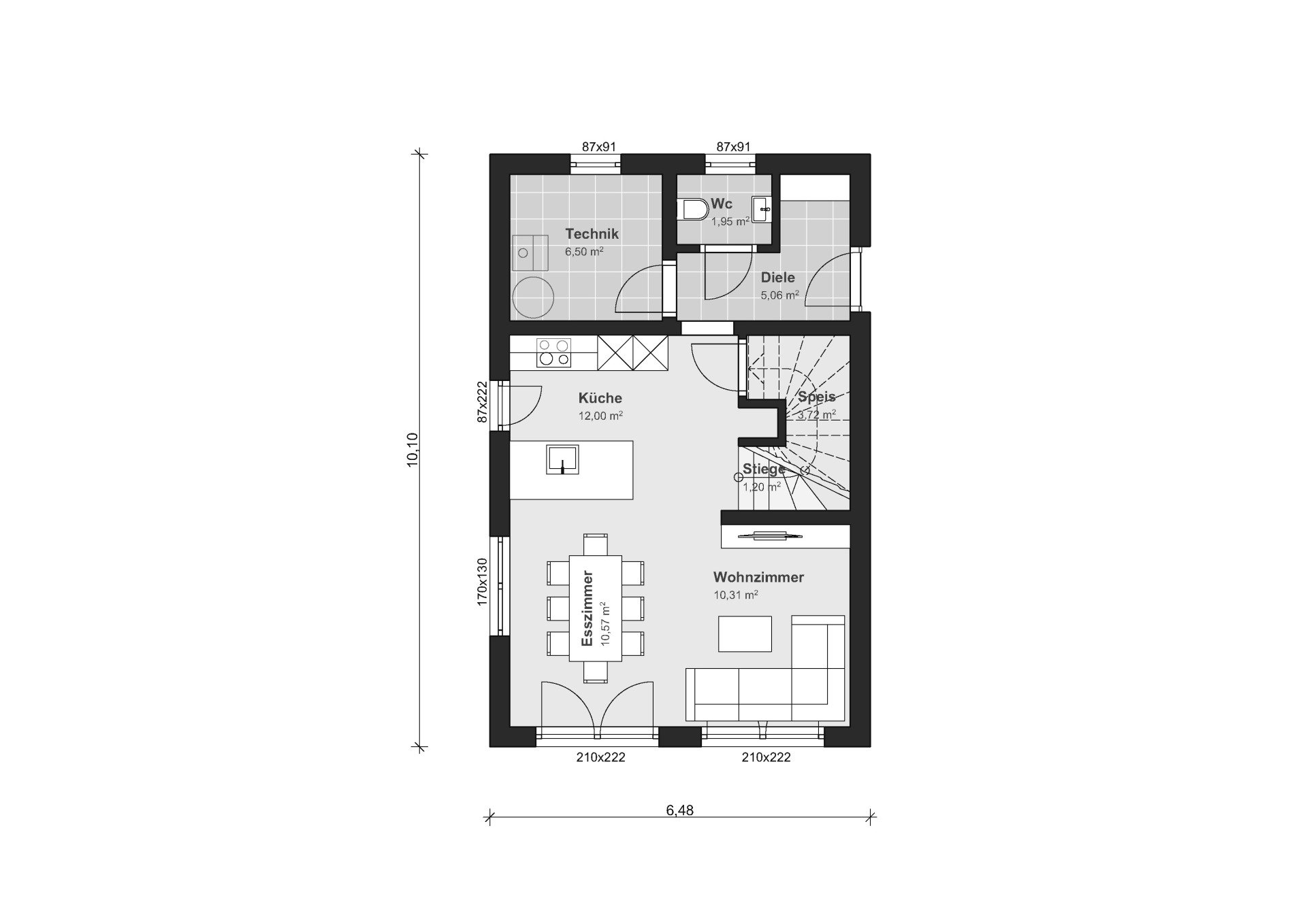
- Bebaute Fläche: 65,45 m²
- Nettogrundfläche: 101,59 m²
- Dachform: 25° Walmdach
€ 363.090,--
Kurzbeschreibung „Schlüsselfertig“
• Außen komplett fertig
• Außenwand Premium Thermo Vital Wand
• Dachkonstruktion mit Dämmung und Dacheindeckung
• Fugenloser Fassadenputz auf der Baustelle aufgebracht (Keine Fugen und keine Schienen)
• Dachentwässerung Alu-Zink beschichtet anthrazit
• Fußbodenheizung inkl. Einzelraumregelung
• Luft-Wasser-Wärmepumpe mit Außeneinheit
• Aufbau, Montage, Kran und Gerüstkosten
• Beplankung der Wände der revolutionären Fasergipsplatte
• Kunststoff-Alu Fenster, 3-fach-verglast
• Fensterbänke außen und innen
• Alu Rollläden inkl E-Antrieb mit Fernbedienung
• Hochwertige Hauseingangstüre mit Mehrfachverriegelung
• Betonestrich inklusive Wärme- und Trittschalldämmung
• Elektroinstallationen inklusive TV und Klingelanlage
• Sicherungskasten inklusive Fertigmeldung an EVU
Zusätzlich bei Schlüsselfertig enthalten:
• Verfliesung Bad + WC
• Sanitäreinrichtung laut Plan
• Dusche mit Echtglaskabine
• Spachtel- und Malerarbeiten
• Bodenbeläge Echtholzparkett in Eiche
• Treppe aus Massivholz in Eiche
• Innentüren laut Plan




